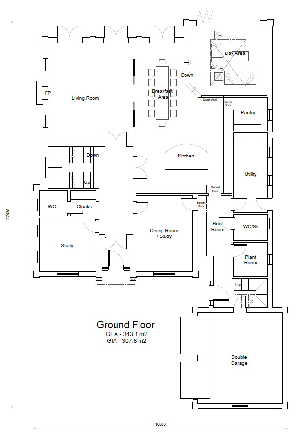
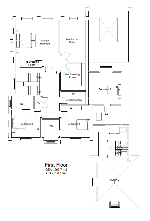
New 6 Bedroom Build in the Burwood Park Private Estate
Planning is currently being sought for a new home to be built within the exclusive Burwood Park private estate near Walton on Thames, Surrey. The property is in the region of 7000 square feet arranged over three floors with the added advantage of planning for a large basement/games room.
The property will comprise of six bedrooms, five bathrooms, staff accommodation, three reception rooms as well as a large kitchen/family area. Garaging will be provided for two cars with plenty of off road parking. The property sits in 0.66 of an acre. The rear garden will have planning for an outside pool and orangery. The grounds will be landscaped incorporating several mature trees.
The concept is to provide an elegant period house incorporating the latest technology resulting in a family friendly home that will provide a tasteful quality home.
There is an opportunity at an early stage to tailor layouts and fittings together with a significant development saving.
Click on the images below to view the larger versions of the proposed plans.







